Fém álmennyezetek az OTP Bank irodaházban
Nagy örömünkre szolgált, hogy Cégünk kapott megbízást az újonnan átadott M12 OTP Bank Nyrt. irodaházába tervezett fém álmennyezeteket beszállítására, mely megbízást sikerült a legjobb tudásunk szerint teljesíteni is.
Az épületről annyit hogy 2016-2018 között zajló tervezés előzte meg a kivitelezési munkálatokat, mely munkálatok 2019-2022-ig tartottak, az épület XIII. kerületi Madarász utcában kapott helyt, mely terület szervesen kapcsolódik a Váci úti Irodaház folyosóhoz. Az épület összesen 106.000m2 bruttó szintterülettel épület meg, melyben közel 30 km fém lamella kapott helyt!!

Grandiózus számok jellemzik az épületet, méltán sorolva az egyik legnagyobb, hanem a legnagyobb irodakomplexumok közé hazánkban. Az épület tervezésénél nagy szerepet kapott a fenntarthatóság, természet közeli anyagok használata, plusz a letisztult forma világ.
Az épület teljes területén 212db nagyméretű fa, 42500db cserje és apró növény kapott helyt, mely növények mindegy tüdeje lett az elkészült irodatereknek. Ha végig nézünk a belső kerten, jól látható a trend hogyan próbálja becsempészni az építészet a középületeinkbe a természet közeli érzést.

A fenti jellemzőkhöz nagyon jól igazodnak az általunk forgalmazott fém álmennyezetek, mely álmennyezeteket a bemutatott épületben visszaköszönnek a folyosókon, közösségi terekben és általában mindenhol. Beszéljünk is most az épületben alkalmazott álmennyezetekről.
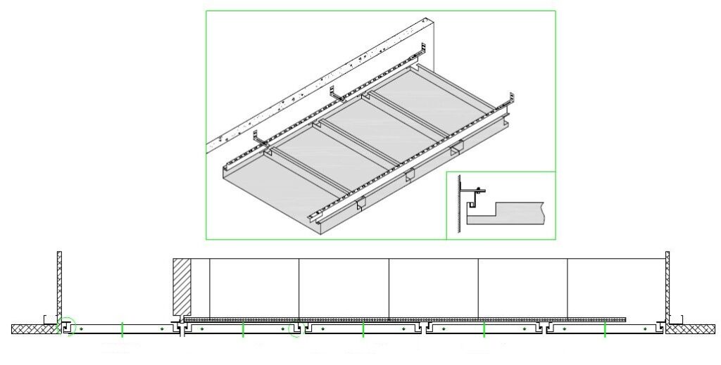
Általában a közlekedőkben, lift előterekben és a folyosókon az általunk kizárólagosan forgalmazott Integra Hook-on Corridor típusú fém perforált felületű álmennyezet került felhasználásra, mely álmennyezet jellemzője a könnyű bonthatóság és megközelíthetőség a gépészeti eszközökhöz, kábelekhez, melyek általában az irodaházak folyosói mennyezeteit zsúfolásig megtöltik.


Az Integra Hook-on Corridor álmennyezet könnyen szerelhető típus, viszonylag kevés alkotórész jellemzi, mely alkotó elemek egyszerű felépítést és telepítést tesznek lehetővé. 
Az álmennyezeti lapok elhelyezése a lapok szélén futó Hook-on profilokra történik, mely profilokat a falakra sarok falcsatlakozóval, vagy akár a födémről függesztve menetesszárakkal rögzítjük. Így az álmennyezet feletti terület nem igényel további függesztés kiépítését, az amúgy is zsúfolt gépészeti térben, ez nagyban megkönnyíti mind a kivitelező, mind az épület fenntartó dolgát. Az álmennyezeti lapok önhordók akár 2500-3000mm hosszúságig.
A másik általunk forgalmazott álmennyezet típus, mely helyt kapott az irodaházban, az a Cbi Baffle sávos fém álmennyezet. Ezen álmennyezet típust a nagyfokú áttörtség jellemzi a lamellák között elhagyott nyitott felületnek köszönhetően, mely mérete, mértéke szabadon választható, az adott munkán a 40mm széles 100mm magas lamellákat alkalmaztunk, 60mm nyitott felülettel, mely így több mint 60%-os szabad felületet biztosított gépészeti eszközöknek, plusz a sávlámpák elhelyezése is ebben a nyitott sávtérben vált lehetővé, szinte minden kiosztási kötöttség nélkül.


Mint a képen is látható, a lamellák perforált felületet kaptak, belső oldalára kasírozott fekete akusztikus szövettel ellátva, mely lamellák így a közösségi terek akusztikájában hatalmas szerepet játszanak. Ez a termék is, mint a többi termékünk, egyedi méretben és színben készül az egyedi igények szerint, jelen esetünkben a lamellák fehér színt kaptak.
A most bemutatott álmennyezetekről a web oldalunkon és itt a blogunkban, teljes képet kaphatnak. Plusz letölthető katalógusok segítenek a behatóbb tanulmányozásukhoz.
Az irodaházban további álmennyezeteink is szerephez jutottak például a rácsos álmennyezetek a teljes vizesblokki álmennyezeti felületeken és további kazettás terpesztett lemez álmennyezetek egyéb közösségi terekben.
Az átadott irodaházban bízunk benne színvonalas munkakörnyezetet sikerült teremteni az ott dolgozók számára, külön örömünkre szolgál hogy a tervezési és kivitelezési folyamatnak mi is részesei lehettünk, szaktudásunkkal és tapasztalatainkkal, plusz probléma megoldó készségünkkel. Reméljünk még sok ilyen munka valósul meg hazánkban.
Impresszum:
Felelős építész tervezők:
- Földes és Társa Építésziroda Kft
- Mónusz Építész Kft
- ÖKO-BAU Kft.
Generáltervező:
- ÖKO-BAU Kft. Tóth László vezető tervező
Belsőépítészet:
- Kismarthy-Lechner Kinga (Milliméter Műterem)
- MádiLánczos Stúdió
Generálkivitelező:
- Market Építő Zrt. (külön köszönet a fotókért)
Várjuk megkeresésüket és érdeklődéseiket termékeink iránt, legyen az fém vagy fa burkolat.

Hiba: Kapcsolatfelvételi űrlap nem található.
































